Duco Roof Turret
Intensieve ventilatie voor dakopbouw
De Duco Roof Turret Solid 30Z biedt de mogelijkheid om verluchtingsopeningen in daken op een esthetische wijze aan het zicht te onttrekken. Tegelijk zorgt de aluminium dakkap voor voldoende intensieve ventilatie van de afgeschermde ruimtes. En is ze quasi bij alle projecten toepasbaar. Optioneel kan een DucoGrille Close 105 in de dakkap geintegreerd worden, waardoor een gecontroleerde luchttoevoer of -afvoer verzekerd is.
All-in-one dakkap: inclusief afdekplaat en onderprofiel
De Duco Roof Turret Solid 30Z wordt aangeboden inclusief bovenplaat en afwerkdorpels. De dakkap wordt uitgevoerd in een RAL-kleur naar keuze. De Duco Roof Turret Solid is inzetbaar voor zowel luchttoevoer als -afvoer bij natuurlijke en mechanische ventilatie. Doordat de dakkap volledig op de gewenste maat wordt gemaakt, staat hij garant voor een snelle en eenvoudige plaatsing.
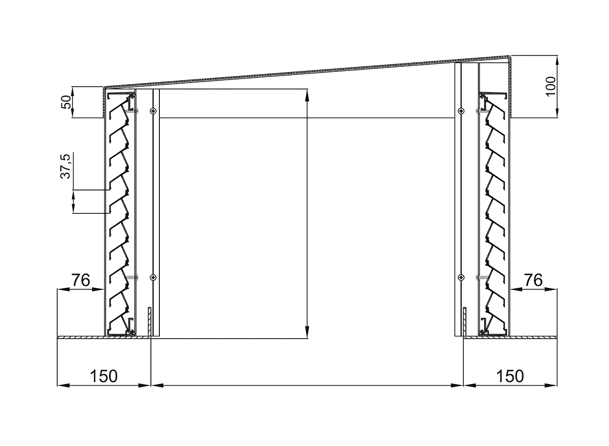
Hoogwaardige Solid 30Z lamellen met 2 types ponsing
De geperforeerde Solid 30Z lamellen vormen zowel op het vlak van insectenwering als van ventilatiecapaciteit een perfecte oplossing. Dankzij de grote ponsing ‘P2’ zijn met een kleine dakkap ook grote ventilatiewaarden haalbaar
Nieuw: De Duco Roof Turret Solid 30Z is optioneel verkrijgbaar met een Eggcrate rooster, dat zorgt voor een nog betere waterwerendheid (combinatie met de P2 lamellen)
| Duco Roof Turret P1 | Duco Roof Turret P2 | Duco Roof Turret P2 + Eggcrate | |
|---|---|---|---|
| Visuele vrije doorlaat | 60 % | 86 % | |
| Fysische vrije doorlaat | 34 % | 48 % | |
| Ce | 0,24 | 0,28 | 0,18 |
| Cd | 0,23 | 0,28 | 0,20 |
| Stap van de lamel | 37,5 mm | 37,5 mm | 37,5 mm |
| Ponsing P1 | S | S | S |
| RVS insectenwering 2,3x2,3mm | O | O | O |
| RVS insectenwering 6x6mm | O | O | O |
| Type | v = 0 m-s | v = 0,5 m-s | v = 1 m-s | v = 1,5 m-s | v = 2 m-s | v = 2,5 m-s |
|---|---|---|---|---|---|---|
| Duco Roof Turret P1 | C (91,1%) | C (83,5%) | D (77,7%) | D | D | D |
| Duco Roof Turret P2 | B (96,1%) | B (95,9%) | C (93,5%) | C (87,6%) | D (67,3%) | D |
| Duco Roof Turret P2 + Eggcrate | A | A | A | B (97,6%) | C (93,2%) | C |


